物件のご紹介

ファミリー・ホスピス南田中ハウス

物件No:南田中131202-004

物件外観

建物外観

クリニック入口

物件概要

老人ホームに併設された診療所の入居募集です。
環八すぐ横、大型スーパー徒歩3分!
建物前面道路が生活道路の為人通りが多く視認性が高い立地となります。

敷地面積:423.98坪
建築面積:184.36坪
竣工予定:2025年
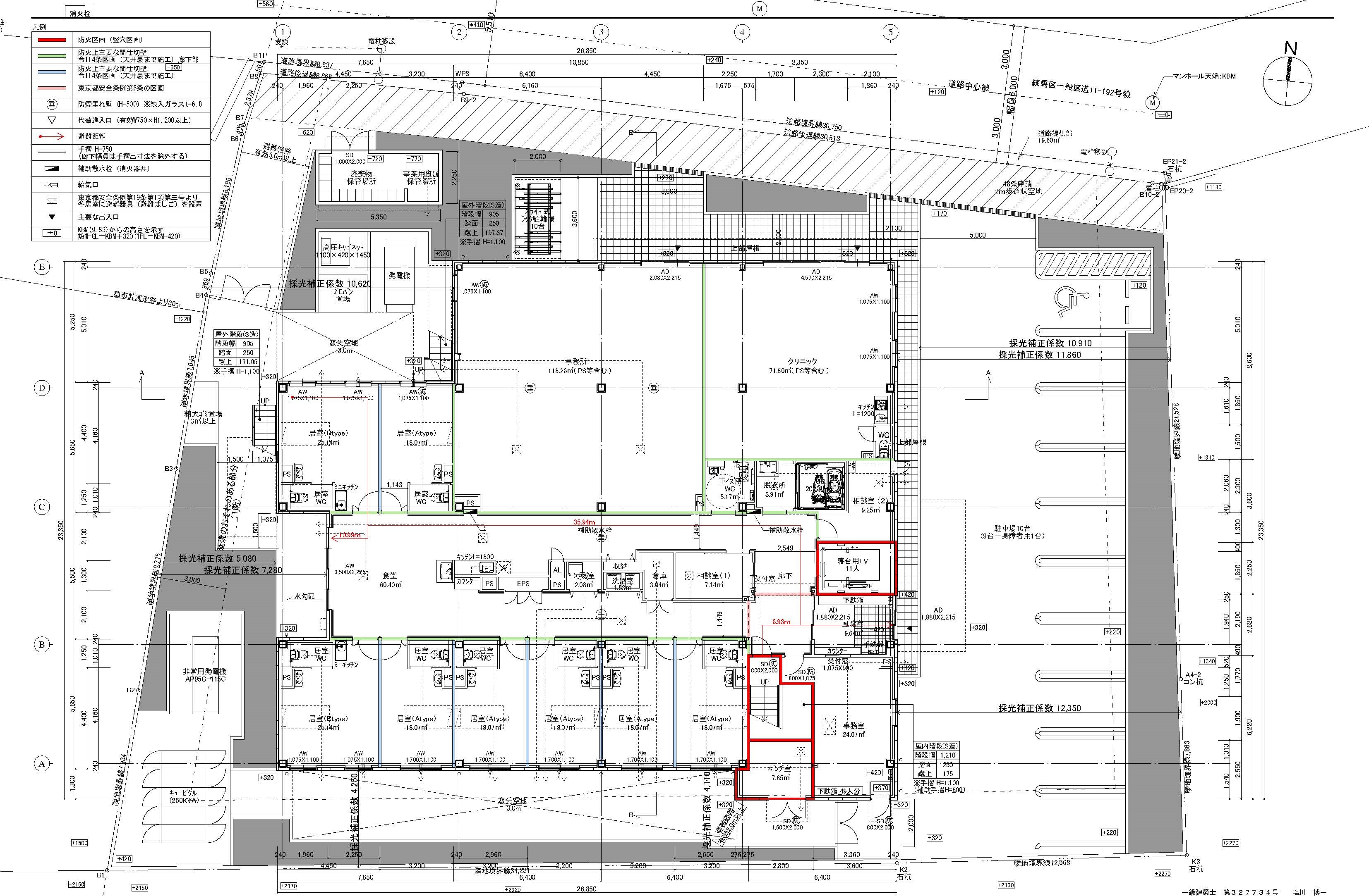
クリニック:1区画、調剤薬局:1区画、居室:34戸

物件形態 老人ホーム+診療所+調剤薬局
診療科目 内科、耳鼻科
所在地 東京都練馬区南田中二丁目18番
交通アクセス 西武池袋線「練馬高野台駅」徒歩17分
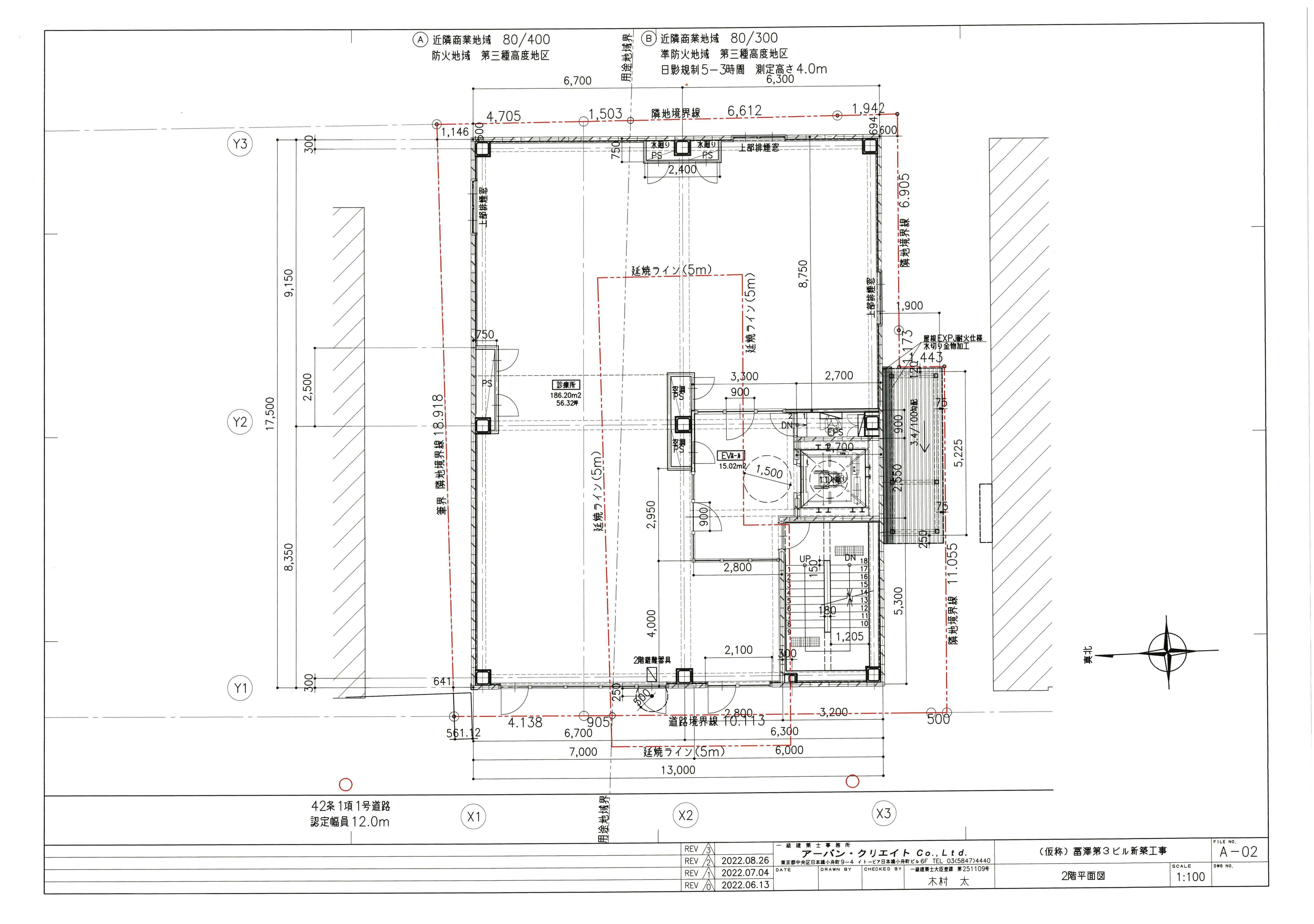
建物面積 クリニック:21.72坪(71.81㎡)
賃料 月額500,000円
諸条件 管理費35,000円/月
敷金12ヶ月
契約期間10年・更新料なし
建物構造 鉄骨コンクリート3階建
築年数 新築
階数 1階/3階
駐車場 1台
その他 -

物件1階平面図

 

物件立面図

 

物件地図

物件のお問い合わせはこちら

ページの先頭に戻る

ADDRESS

東京都目黒区青葉台3-21-13 3F