仮称)Y’sクリニックビル計画(*「芹が谷クリニックビル」からの名称変更となっております)
物件No:横浜芹が谷141003−001
物件外観
物件概要
診療圏調査の結果良好です。2018年秋竣工予定
| 物件形態 | クリニックビル |
|---|---|
| 診療科目 | 全 科 |
| 所在地 | 神奈川県横浜市港南区芹が谷5丁目55-15 |
| 交通アクセス | 京浜急行線 上大岡駅下車 神奈川中央交通203系統バス「芹が谷団地」下車徒歩3分 |
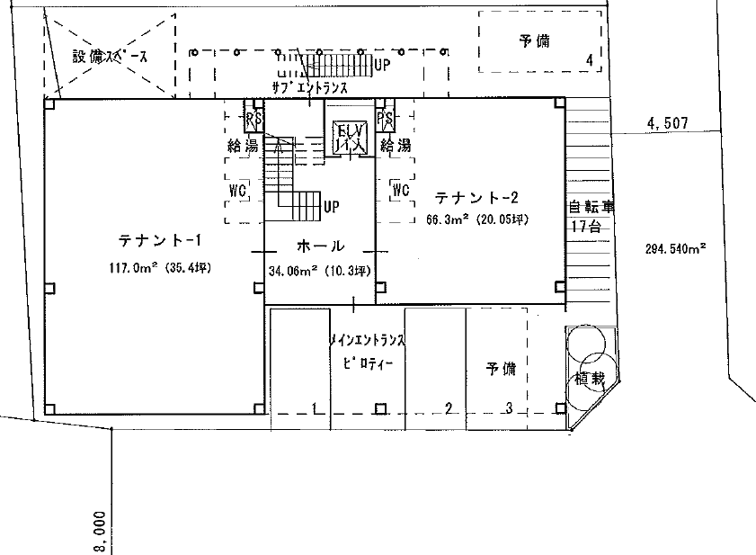
| 建物面積 | 2F-1 35.53坪 / 2F‐2 40.00坪 3F-1 35.53坪 / 3F-2 40.00坪 |
| 賃料 | 応相談 |
| 諸条件 | 普通賃貸借15年 保証金6ヶ月 礼金1ヶ月 |
| 建物構造 | 鉄骨造 3階建 |
| 築年数 | 新築 |
| 階数 | 2階、3階(3階建) |
| 駐車場 | 20台 |
| その他 |








